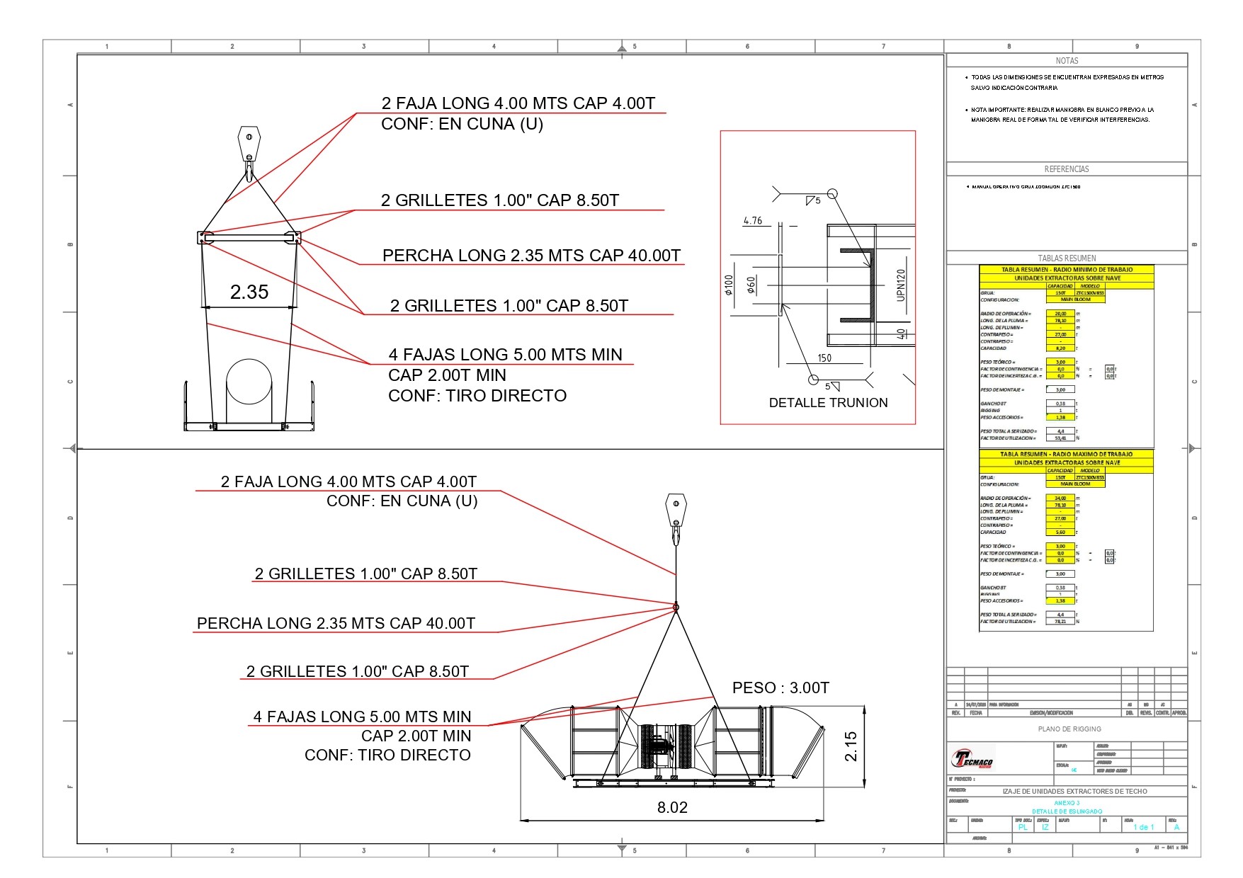
Montaje de Extractores 3T

Grúas

ZOOMLION ZTC 1500 H733

Categoría

Siderurgia

Montaje de 8 extractores de aire de 3 toneladas de peso, con la grúa telescópica Zoomlion ZTC1500. El movimiento se realizó con una configuración de pluma principal a un radio de 34m y una altura de trabajo de 25m.

pin de ubicación Santa Fé
pin de ubicación Santa Fé
pin de ubicación Santa Fé

Alquiler de grúas

Ver todos

Grúas AT ZOM057

ZOOMLION ZAT 8000 H753

Año: 2023Capacidad: 800 TonLargo Pluma: 92 MtsPlumín: 93 MtsSuperlift: SiLuffing Jib: Si

Grúas sobre Orugas FUW003

FUWA QUY 750

Año: 2012Capacidad: 750 TonLargo Pluma: 84 MtsPlumín: 102 MtsSuperlift: SiLuffing Jib: Si

Grúas AT ZOM070

ZOOMLION ZAT 2500V

Año: 2024Capacidad: 250 TonLargo Pluma: 88 MtsPlumín: 17.5 Mts

Grúas City KAT003

KATO MR 100

Año: 1992Capacidad: 10 TonLargo Pluma: 23.3 Mts

Grúas Torre TD013

ZOOMLION L125-8F

Capacidad: 8 TonLargo Flecha: 50 Mts

Grúas sobre Camión ZOM053

ZOOMLION ZTC 1600H8

Año: 2023Capacidad: 160 TonLargo Pluma: 85 MtsPlumín: 33 Mts

Grúas RT TAD091

TADANO GR 1000 XL

Año: 2014Capacidad: 90 TonLargo Pluma: 47 MtsPlumín: 18 Mts

Grúas sobre Orugas ZOM062

ZOOMLION ZCC 850V-1

Año: 2023Capacidad: 85 TonLargo Pluma: 61 MtsPlumín: 19 Mts

Grúas RT ZOM077

ZOOMLION RT 60

Año: 2019Capacidad: 60 Ton

Pick and Carry ORM001

ORMIG 50-55TM

Año: 2016Capacidad: 55 TonLargo Pluma: 14 Mts

Grúas RT TAD078

TADANO GR 300 EX

Año: 2011Capacidad: 30 TonLargo Pluma: 31 MtsPlumín: 13 Mts

Camiones Pluma ROD166

TADANO TM 1882

Año: 2014Capacidad: 16 TonLargo Pluma: 25 Mts

Grúas City KOM001

KOMATSU LW 100-1

Año: 1996Capacidad: 10 TonLargo Pluma: 21.5 MtsPlumín: 3.4 Mts

Grúas AT XCM007

XCMG XCA 350L8

Año: 2025Capacidad: 350 TonLargo Pluma: 92 MtsPlumín: 26.5 MtsSuperlift: SiLuffing Jib: Si

Grúas City TAD052

TADANO TR-80 M-1

Año: 1994Capacidad: 4.9 TonLargo Pluma: 21.3 Mts

Grúas AT DEM010

DEMAG AC 500-2

Año: 2008Capacidad: 500 TonLargo Pluma: 56 MtsPlumín: 54 MtsSuperlift: SiLuffing Jib: Si

Grúas sobre Orugas ZOM051

ZOOMLION ZCC 2600

Año: 2019Capacidad: 260 TonLargo Pluma: 95 MtsPlumín: 30 MtsLuffing Jib: Si

Grúas AT ZOM004

ZOOMLION ZAT 1500

Año: 2017Capacidad: 150 TonLargo Pluma: 72 MtsPlumín: 27 Mts

Grúas RT TAD057

TADANO GR 700 EXL 1

Año: 2007Capacidad: 70 TonLargo Pluma: 44 MtsPlumín: 17.7 Mts

Grúas sobre Camión

ZOOMLION ZMC 450V532

Año: 2026Capacidad: 45 TonLargo Pluma: 44 MtsPlumín: 8.5 Mts

Proyectos relacionados

Ver todos
+ +

¿Necesitas
       asesoramiento?

Contactanos
+ +

Comprar Alquilar